Experiential
Arts
Architecture
Fabrication
Graphic Design
Project List
About
Sellenraad Design
Experiential
Arts
Architecture
Fabrication
Graphic Design
Project List
About
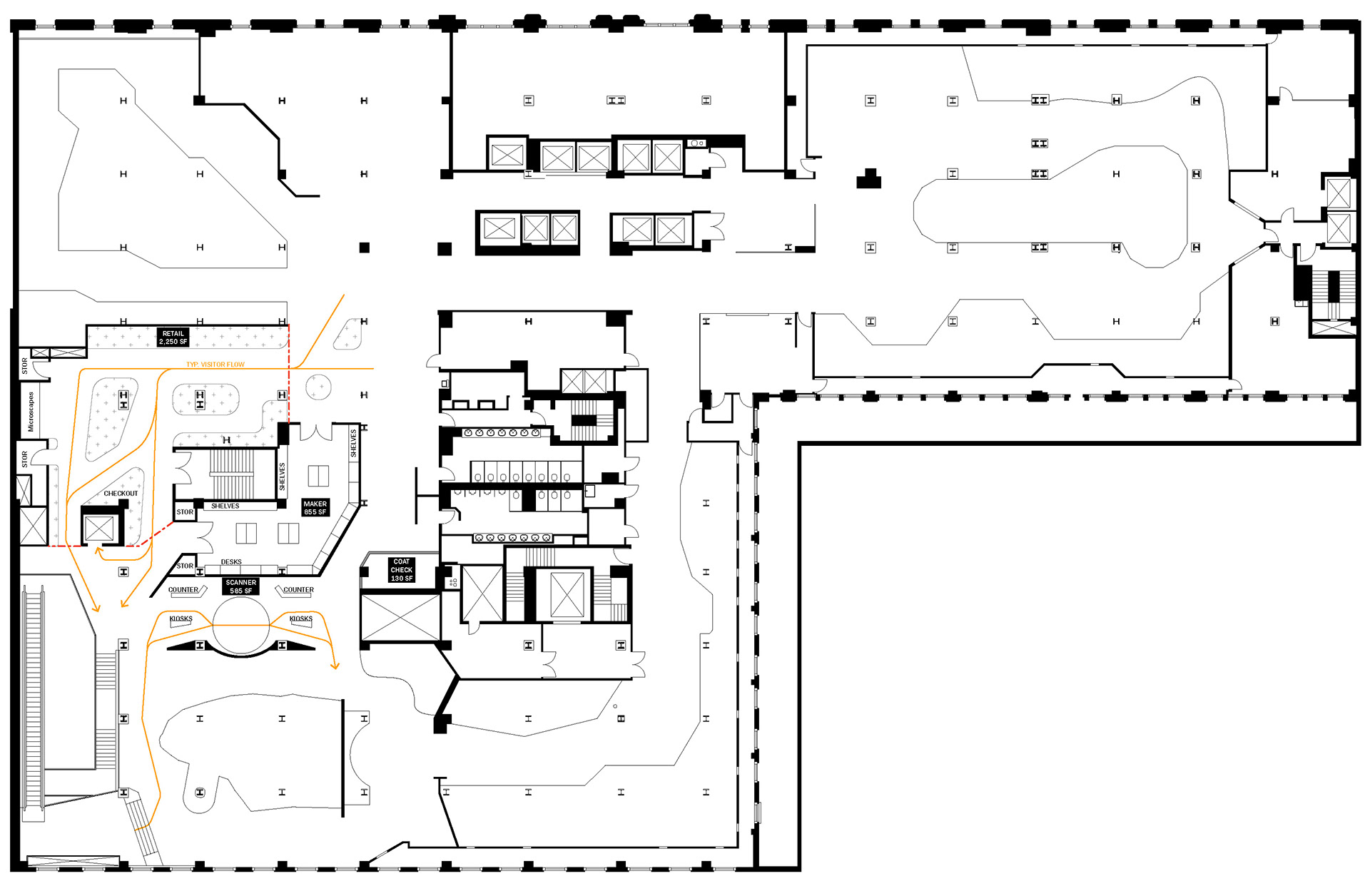
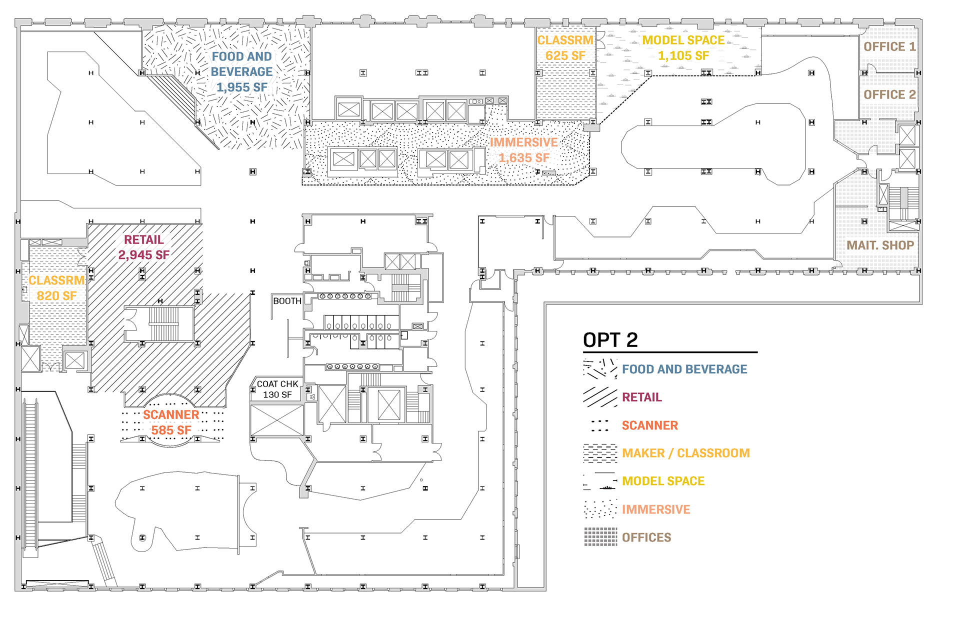
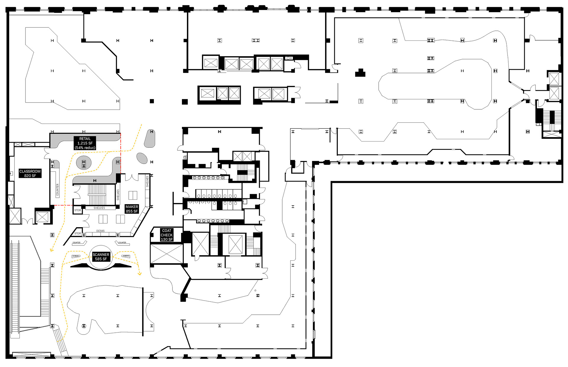
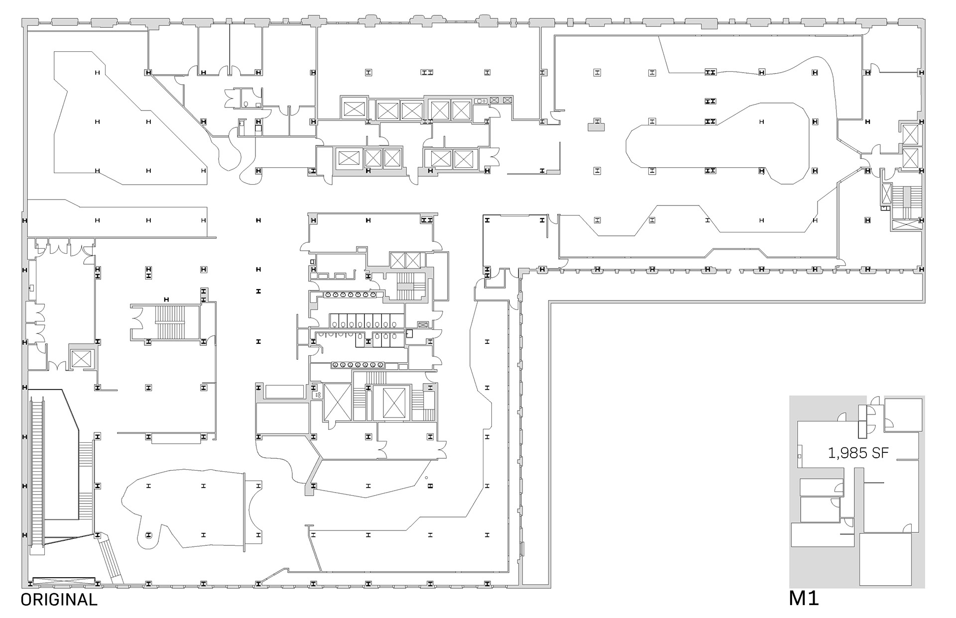
Gulliver's Gate Master Plan
Company: Gulliver's Gate, LLC
Date: 2018
Location: Times Square, New York, NY
Scope of Work:
master plan redevelopment for the existing exhibit at Gulliver's Gate
A concept design to redesign underused spaces within the exhibit to create a more efficient, immersive, seamless visitor experience.
↑
Back to Top